0

Ładowarka baza pytań

1 / 276

1. Urządzenie techniczne objęte dozorem technicznym może być eksploatowane na podstawie:

2 / 276

2. Które z wymienionych czynności nie należą do zakresu obowiązków obsługującego UTB:

3 / 276

3. Terminy przeglądów konserwacyjnych urządzeń technicznych:

4 / 276

4. Dozorem technicznym nazywamy:

5 / 276

5. Dozór techniczny nad urządzeniami technicznymi wykonuje:

6 / 276

6. Zmiana parametrów technicznych lub zmiana konstrukcji urządzenia technicznego traktowana jest jako:

7 / 276

7. Uzgodnioną naprawę lub modernizację urządzeń technicznych może wykonać:

8 / 276

8. Ustawa o dozorze technicznym określa następujące formy dozoru technicznego:

9 / 276

9. Decyzję zezwalającą na eksploatację urządzenia technicznego wydaje:

10 / 276

10. Obsługujący urządzenie techniczne może podjąć pracę gdy:

11 / 276

11. Obsługujący urządzenie techniczne może podjąć pracę gdy:

12 / 276

12. W przypadku nieprzestrzegania przez eksploatującego przepisów o dozorze technicznym eksploatujący:

13 / 276

13. W przypadku stwierdzenia zagrożenia dla życia lub zdrowia ludzkiego oraz mienia i środowiska inspektor:

14 / 276

14. W przypadku niebezpiecznego uszkodzenia urządzenia technicznego lub nieszczęśliwego wypadku eksploatujący:

15 / 276

15. Zaświadczenie kwalifikacyjne do obsługi może zostać cofnięte przez:

16 / 276

16. Urządzenia techniczne nieobjęte dozorem technicznym to:

17 / 276

17. Urządzenia techniczne objęte dozorem technicznym to:

18 / 276

18. Niebezpieczne uszkodzenie urządzenia technicznego to:

19 / 276

19. Nieszczęśliwy wypadek to:

20 / 276

20. Podnoszenie i przenoszenie osób przez urządzenie techniczne przeznaczone wyłącznie do transportu ładunków wymaga:

21 / 276

21. Odpowiedzialnym za zapewnienie właściwej obsługi i konserwacji urządzenia technicznego jest:

22 / 276

22. Wymagane przepisami prawa przeglądy konserwacyjne wykonuje:

23 / 276

23. Dziennik konserwacji urządzenia technicznego prowadzi:

24 / 276

24. Badania odbiorcze przeprowadza się dla urządzeń technicznych:

25 / 276

25. Badania okresowe przeprowadza się dla urządzeń technicznych objętych dozorem:

26 / 276

26. Nieobecność konserwującego na badaniu urządzenia technicznego wymaga min.:

27 / 276

27. Kandydat na obsługującego urządzenie techniczne musi:

28 / 276

28. Obsługujący urządzenie techniczne ma obowiązek przerwać pracę gdy:

29 / 276

29. Terminy przeglądów konserwacyjnych urządzenia mogą być określone:

30 / 276

30. Terminy badań okresowych i doraźnych kontrolnych UTB określone są:

31 / 276

31. Obowiązkiem obsługującego urządzenie techniczne jest:

32 / 276

32. Urządzenie techniczne można eksploatować na podstawie:

33 / 276

33. Po wykonanych czynnościach przy urządzeniu technicznym inspektor sporządza:

34 / 276

34. Naprawę i modernizację urządzenia technicznego wykonuje:

35 / 276

35. Bezpośrednio odpowiedzialnym za bezpieczną eksploatację urządzenia technicznego jest:

36 / 276

36. Informacje dotyczące zasad bezpiecznej obsługi urządzenia są zawarte w:

37 / 276

37. W ramach czynności przed rozpoczęciem pracy obsługujący:

38 / 276

38. Zaświadczenia kwalifikacyjne do obsługi urządzeń technicznych podlegających dozorowi technicznemu wydaje:

39 / 276

39. Przeciążanie UTB w trakcie pracy:

40 / 276

40. Badania doraźne eksploatacyjne wykonuje się m.in.:

41 / 276

41. Obowiązki obsługującego określone są:

42 / 276

42. Badania okresowe urządzenia technicznego są wykonywane przez:

43 / 276

43. Jednostką dozoru technicznego jest:

44 / 276

44. Zaświadczenia kwalifikacyjne uprawniające do obsługi urządzeń technicznych ważne są na terenie:

45 / 276

45. Obowiązek stosowania środków ochrony indywidualnej przez operatorów urządzeń technicznych wynika z:

46 / 276

46. Zgodnie z rozporządzeniem Rady Ministrów w sprawie rodzajów urządzeń technicznych podlegających dozorowi technicznemu przepisom dozoru technicznego podlegają:

47 / 276

47. Instrukcja eksploatacji może nie zawierać:

48 / 276

48. Księga rewizyjna urządzenia musi zawierać:

49 / 276

49. Decyzja wydana przez UDT:

50 / 276

50. Do egzaminu sprawdzającego kwalifikacje może przystąpić osoba,która:

51 / 276

51. Po zakończonym badaniu technicznym z wynikiem pozytywnym inspektor UDT:

52 / 276

52. Zaświadczenia kwalifikacyjne:

53 / 276

53. Dokonujący przeróbek urządzenia technicznego bez uzgodnienia z organem właściwej jednostki dozoru technicznego:

54 / 276

54. Kto dopuszcza do eksploatacji urządzenie techniczne bez ważnej decyzji zezwalającej na eksploatację:

55 / 276

55. Instrukcja eksploatacji to:

56 / 276

56. Zaświadczeń kwalifikacyjnych do obsługi nie wymaga się:

57 / 276

57. Osoba posiadająca zaświadczenia kwalifikacyjne może obsługiwać:

58 / 276

58. Obowiązkiem obsługującego urządzenie techniczne jest:

59 / 276

59. Zaświadczenie kwalifikacyjne do obsługi urządzeń technicznych są:

60 / 276

60. Obsługujący który jest świadkiem wypadku ma obowiązek:

61 / 276

61. Obsługującemu NIE wolno:

62 / 276

62. Formami dozoru technicznego są:

63 / 276

63. Podnoszenie osób urządzeniami, które zostały zaprojektowane i wykonane wyłącznie do podnoszenia ładunków:

64 / 276

64. Podnoszenie ładunków za pomocą dwóch lub więcej UTB:

65 / 276

65. Przebywanie osób pod ładunkiem przenoszonym jest:

66 / 276

66. Przenoszenia ładunków nad osobami jest:

67 / 276

67. Zaświadczenia kwalifikacyjne do obsługi urządzeń technicznych podlegających dozorowi technicznemu wydaje:

68 / 276

68. Komisja egzaminacyjna powiadamia osobę zainteresowaną o wyniku egzaminu:

69 / 276

69. Dziennik konserwacji powinien być prowadzony:

70 / 276

70. Instrukcja stanowiskowa:

71 / 276

71. Po upływie terminu ważności zaświadczenia kwalifikacyjnego do obsługi urządzenia obsługujący:

72 / 276

72. Przedłużenie ważności zaświadczenie kwalifikacyjnego następuje:

73 / 276

73. Udźwig UTB to parametr urządzenia bezpośrednio związany z:

74 / 276

74. Masa netto 1000 l wody wynosi ok:

75 / 276

75. Masa ładunku składającego się z 40 opakowań po 25 kg każdy wynosi:

76 / 276

76. Masa 60 kartonów po 20 kg każdy wynosi:

77 / 276

77. Masę podnoszonego ładunku można określić na podstawie:

78 / 276

78. Informacja dotycząca udźwigu urządzenia może być zawarta:

79 / 276

79. Prawidłowe określenie jednostki udźwigu to:

80 / 276

80. Które z elementów nie wchodzą w skład układu hydraulicznego wózka jezdniowego podnośnikowego ?

81 / 276

81. Zamek hydrauliczny zapewnia ochronę przed:

82 / 276

82. Elementem przekształcającym ciśnienie oleju hydraulicznego w ruch mechaniczny jest:

83 / 276

83. Elementem wytwarzającym ciśnienie w układzie hydraulicznym wózka jezdniowego podnośnikowego jest:

84 / 276

84. Zawór przelewowy instalowany w układzie hydraulicznym wózków jezdniowych podnośnikowych ma za zadanie:

85 / 276

85. Bezpieczny sposób sprawdzenia działania zaworu przelewowego przeprowadza się:

86 / 276

86. Rozdzielacz hydrauliczny instalowany jest w układzie w celu:

87 / 276

87. Elementem wykonawczym w układzie hydraulicznym wózka jezdniowego podnośnikowego jest:

88 / 276

88. Elementem chroniącym układ hydrauliczny przed nadmiernym wzrostem ciśnienia jest:

89 / 276

89. Zawór zwrotno-dławiący montowany w układzie podnoszenia wózka jezdniowego podnośnikowego ma na celu:

90 / 276

90. Zawór bezpieczeństwa w układzie hydraulicznym wózka jezdniowego podnośnikowego:

91 / 276

91. W przypadku wzrostu ciśnienia nadmiar oleju odprowadzany jest:

92 / 276

92. Kryteria i warunki poprawnego wykonania prób układu hydraulicznego określa:

93 / 276

93. Akumulatory w elektrycznym wózku podnośnikowym:

94 / 276

94. Parametry podane przez producenta na tabliczce znamionowej akumulatorów to:

95 / 276

95. Wyłącznik bezpieczeństwa STOP jest:

96 / 276

96. Wyłącznik bezpieczeństwa STOP:

97 / 276

97. Jakiego rodzaju ogumienie stosowane jest w wózkach jezdniowych podnośnikowych:

98 / 276

98. Kto decyduje o rodzaju i wielkość opon zastosowanych w wózku:

99 / 276

99. Graniczne zużycie opon superelastycznych (w przypadku braku innych wytycznych) to:

100 / 276

100. Jaki rodzaj zużycia wyklucza opony pełne z dalszej eksploatacji:

101 / 276

101. Świecąca się kontrolka ciśnienia oleju może świadczyć o:

102 / 276

102. Oznaczenie przedstawione na rysunku znajduje się na dźwigni:

103 / 276

103. Widząc świecącą się kontrolkę operator:

104 / 276

104. Dźwignia oznaczona poniższym piktogramem po wychyleniu przez operatora do przodu spowoduje:

105 / 276

105. Dźwignia oznaczona poniższym piktogramem po wychyleniu przez operatora spowoduje:

106 / 276

106. Wózki jezdniowe podnośnikowe czołowe z fotelem dla operatora muszą być wyposażone w:

107 / 276

107. Hamowanie jazdy wózka prowadzonego może być realizowane przez:

108 / 276

108. W skład układu mechanizmu podnoszenia wchodzi:

109 / 276

109. Wózki jezdniowe podnośnikowe czołowe z fotelem dla operatora mogą być wyposażone w maszt typu:

110 / 276

110. Jakie elementy bezpieczeństwa chronią operatora w przypadku utraty stateczności wózka podnośnikowego czołowego?

111 / 276

111. Jakie elementy maja wpływ na stateczność wózka podnośnikowego czołowego?

112 / 276

112. Do zasilania wózków podnośnikowych spalinowych stosowane są butle gazowe:

113 / 276

113. W wózkach podnośnikowych łańcuch mechanizmu podnoszenia jest:

114 / 276

114. Oznaczenie na poniższym rysunku przedstawia:

115 / 276

115. Oznaczenie na poniższym rysunku przedstawia:

116 / 276

116. Oznaczenie na poniższym rysunku przedstawia:

117 / 276

117. Oznaczenie na poniższym rysunku przedstawia:

118 / 276

118. Zapalona lub migająca lampka kontrolna:

119 / 276

119. Pracując wózkiem z osprzętem wymiennym operator powinien:

120 / 276

120. Osprzęt wymienny może być zainstalowany do wózka przez:

121 / 276

121. Jaki wpływ na udźwig wózka ma zamontowany dodatkowy osprzęt wymienny:

122 / 276

122. Po montażu osprzętu wymiennego przewidzianego przez wytwórcę wózka:

123 / 276

123. Dźwignia oznaczona poniższym piktogramem, po wychyleniu przez operatora powoduje:

124 / 276

124. Praca wózkiem z zamontowanymi przedłużkami do wideł jest dozwolona w przypadku gdy:

125 / 276

125. Zabezpieczenie elektryczne montowane na zakończeniu dyszla wózka jezdniowego prowadzonego to:

126 / 276

126. Który z elementów wyposażenia zabezpiecza przed uruchomieniem urządzenia przez osoby niepowołane?

127 / 276

127. Cecha 1500 x 500 znajdująca się na widle nośnej oznacza:

128 / 276

128. Maksymalny ładunek jaki można podnieść na parze wideł oznaczonych 2500 x 500 każda wynosi:

129 / 276

129. Praca wózkiem jezdniowym podnośnikowym ze zbyt niskim poziomem oleju w układzie hydraulicznym może objawiać się:

130 / 276

130. "Skokowy" ruch mechanizmu podnoszenia do góry może być spowodowany:

131 / 276

131. Nieszczelność w układzie hydraulicznym wózka jezdniowego podnośnikowego może się objawiać:

132 / 276

132. Gęstość oleju hydraulicznego w temperaturze ujemnej:

133 / 276

133. Stan poziomu oleju w układzie hydraulicznym operator sprawdza:

134 / 276

134. O ile wytwórca nie określi inaczej, maksymalne odchylenie od pionowego położenia masztu obciążonego, spowodowane wewnętrznym przeciekiem w układzie wychyłu nie powinno przekroczyć:

135 / 276

135. O ile wytwórca nie określi inaczej, składowa opadania mechanizmu podnoszenia wózka o udźwigu do 10 t obciążonego ciężarem nominalnym nie powinna przekroczyć:

136 / 276

136. O ile wytwórca nie określi inaczej, składowa opadania mechanizmu podnoszenia wózka o udźwigu powyżej 10 t obciążonego ciężarem nominalnym nie powinna przekroczyć:

137 / 276

137. Optymalne obciążenie potrzebne do przeprowadzenia próby szczelności wewnętrznej układu hydraulicznego wynosi:

138 / 276

138. O ile wytyczne producenta nie stanowią inaczej, minimalna wysokość na jaką należy podnieść ładunek podczas próby szczelności wewnętrznej układu wychyłu masztu wynosi:

139 / 276

139. Sprawdzenie w bezpieczny sposób działania zaworu przelewowego należy wykonać:

140 / 276

140. Sprawdzenie układu hydraulicznego w wózkach podnośnikowych obejmuje:

141 / 276

141. Sprawdzenie poprawności działania dźwigni sterowniczych należy wykonać:

142 / 276

142. Zakres przeprowadzonych prób wózków jezdniowych podnośnikowych wyposażonych w hydrauliczny osprzęt dodatkowy obejmuje:

143 / 276

143. Akumulatory kwasowe można ładować:

144 / 276

144. Pomieszczenie, w którym odbywa się ładowanie akumulatorów wózka:

145 / 276

145. Obowiązkiem operatora wózków jezdniowych podnośnikowych jest:

146 / 276

146. Osoba dokonująca wymiany rozładowanych akumulatorów powinna:

147 / 276

147. Łącznik bezpieczeństwa "STOP" służy do:

148 / 276

148. W przypadku stwierdzenia sytuacji niebezpiecznej operator wózka ma obowiązek:

149 / 276

149. Sprawdzenie poprawności działania łącznika bezpieczeństwa STOP należy wykonać:

150 / 276

150. Graniczne wartości zużycia ogumienia zawiera:

151 / 276

151. Ciśnienie w oponach powinno być dostosowane do:

152 / 276

152. Nierówne ciśnienie w oponach na jednej osi może spowodować:

153 / 276

153. Wpływ na przyspieszone zużycie opon pneumatycznych ma:

154 / 276

154. Nierównomierne zużycie opon pełnych znajdujących się na wspólnej osi:

155 / 276

155. Ocenę stanu technicznego ogumienia przeprowadza:

156 / 276

156. W przypadku stwierdzenia uszkodzeń mechanicznych ogumienia, mających wpływ na bezpieczną eksploatację, operator wózka:

157 / 276

157. Operator po zauważeniu podczas jazdy palącej się lampki kontrolnej ciśnienia oleju silnika powinien:

158 / 276

158. Po zakończeniu pracy operator powinien:

159 / 276

159. Sprawne dźwignie sterujące:

160 / 276

160. Opis próby sprawdzenia poprawności działania hamulca zasadniczego opisuje:

161 / 276

161. Informacje dotyczące sposobu sprawdzania poprawności działania hamulca pomocniczego są zawarte w:

162 / 276

162. Podczas próby hamulca zasadniczego maszt powinien być w pozycji:

163 / 276

163. Próbę hamulca zasadniczego należy przeprowadzać:

164 / 276

164. Jeżeli w czasie próby hamulca pomocniczego operator uzna, że jego działanie jest nieprawidłowe powinien:

165 / 276

165. W przypadku stwierdzenia awarii układu hamulcowego operator powinien:

166 / 276

166. W przypadku stwierdzenia wycieku płynu hamulcowego, operator powinien:

167 / 276

167. W przypadku stwierdzenia niewłaściwego działania hamulca pomocniczego, operator:

168 / 276

168. Hamulec zasadniczy należy sprawdzać jadąc wózkiem podnośnikowym i hamując:

169 / 276

169. Operator powinien przeprowadzić sprawdzenie hamulców:

170 / 276

170. Schodząc z fotela operatora, obsługujący wózek powinien:

171 / 276

171. Zakres czynności kontrolnych masztu wózka podnośnikowego obejmuje:

172 / 276

172. Podczas jazdy wózkiem podnośnikowym z ładunkiem na widłach należy:

173 / 276

173. Ładunek należy transportować:

174 / 276

174. Podczas zjazdu z pochyłej rampy wózkiem czołowym podnośnikowym wraz z ładunkiem, operator:

175 / 276

175. Podczas wjazdu na pochyłą rampę wózkiem jezdniowym podnośnikowym z ograniczającym widoczność, operator:

176 / 276

176. Poruszanie się wózkiem w poprzek pochyłej rampy jest:

177 / 276

177. Poruszając się wózkiem z ładunkiem ograniczającym widoczność operator powinien:

178 / 276

178. Podczas jazdy wózkiem jezdniowym podnośnikowym z ładunkiem należy:

179 / 276

179. Wylot zaworu butli gazowej powinien być skierowany:

180 / 276

180. Szczelność instalacji gazowej sprawdza się przy pomocy:

181 / 276

181. Eksploatacja wózka jezdniowego w temperaturze poniżej -10°C:

182 / 276

182. Eksploatacja wózka jezdniowego w temperaturze powyżej 30°C:

183 / 276

183. W oparciu o tabelę określ jakie maksymalne obciążenie może przenieść gniazdo ładunkowe regału:

184 / 276

184. W oparciu o tabelę,określ na które najwyższe gniazdo ładunkowe podasz towar dysponując wózkiem o maksymalnej wysokości podnoszenia 2100mm:

185 / 276

185. Odstawiając ładunek na regał magazynowy operator powinien znać:

186 / 276

186. Podczas transportu ładunków wielkogabarytowych operator powinien:

187 / 276

187. Na co powinien zwrócić uwagę operator podczas wymiany baterii trakcyjnych ?

188 / 276

188. Przyczyną utraty stateczności wózka może być:

189 / 276

189. Dopuszczalna prędkość jazdy wózka jest określona:

190 / 276

190. Przed rozpoczęciem pracy wózkiem należy sprawdzić funkcjonowanie:

191 / 276

191. Po zamontowaniu dodatkowego osprzętu wymiennego należy:

192 / 276

192. Przed wjazdem wózkiem na rampę załadowczą operator powinien sprawdzić:

193 / 276

193. Podczas jazdy wózkiem podnośnikowym należy:

194 / 276

194. Gdzie znajduje się informacja dotycząca udźwigu wózka:

195 / 276

195. Przed rozpoczęciem pracy wózkiem należy:

196 / 276

196. Praca wózka z koszem do podnoszenia osób zakładanym na widły:

197 / 276

197. W przypadku kiedy wózek traci stateczność, operator:

198 / 276

198. W chwili wywracania się wózka należy:

199 / 276

199. Wózek może stracić stateczność na skutek:

200 / 276

200. Jeżeli instrukcja wózka nie stanowi inaczej, następujące w toku eksploatacji maksymalne wydłużenie łańcucha nośnego może wynosić:

201 / 276

201. Jeżeli instrukcja wózka nie stanowi inaczej, dopuszczalna ilość pękniętych płytek łańcucha nośnego (konstrukcji Flyera) wynosi:

202 / 276

202. Jeżeli instrukcja wózka nie stanowi inaczej, minimalna dopuszczalna grubość poziomej części wideł zmierzona w pobliżu ich naroża (pięty) wynosi:

203 / 276

203. Jeżeli instrukcja wózka nie stanowi inaczej, minimalna dopuszczalna grubość poziomej części wideł zmierzona w pobliżu ich naroża (pięty) wynosi:

204 / 276

204. Jeżeli instrukcja wózka nie stanowi inaczej, minimalna dopuszczalna grubość poziomej części wideł zmierzona w pobliżu ich naroża (pięty) wynosi:

205 / 276

205. Jeżeli instrukcja wózka nie stanowi inaczej, minimalna dopuszczalna grubość poziomej części wideł zmierzona w pobliżu ich naroża (pięty) wynosi:

206 / 276

206. Jeżeli instrukcja wózka nie stanowi inaczej, maksymalne dopuszczalne rozgięcie widły względem wartości oryginalnej (zwykle 90 stopni), wynosi:

207 / 276

207. Sprawdzenie poprawności działania układu hydraulicznego w wózkach ze zmiennym wysięgiem obejmuje min.:

208 / 276

208. Minimalna bezpieczna odległość pracy wózka przy wykopie uzależniona jest od:

209 / 276

209. Przedstawiony rysunek oznacza:

210 / 276

210. Urządzeniem zabezpieczającym wózek ze zmiennym wysięgiem przed wywróceniem jest:

211 / 276

211. Poprawnie działający ogranicznik obciążenia w wózkach ze zmiennym wysięgiem powoduje:

212 / 276

212. W przypadku awarii układu hydraulicznego przy podniesionej kabinie i braku możliwości awaryjnego opuszczenia kabiny operator powinien:

213 / 276

213. W przypadku awarii wózka, przy podniesionej kabinie operator powinien:

214 / 276

214. Urządzeniem zabezpieczającym operatora przed przygnieceniem lub wypadnięciem instalowanym w wózkach z operatorem podnoszonym wraz z ładunkiem może być:

215 / 276

215. Elementem mającym na celu zapewnienie prawidłowej pozycji obsługującego wózek z operatorem podnoszonym wraz z ładunkiem, może być:

216 / 276

216. Zabezpieczenia elektryczne charakterystyczne dla wózka z operatorem podnoszonym wraz z ładunkiem to:

217 / 276

217. W oparciu o przedstawiony diagramu dźwigu i rysunek określ maksymalną bezpieczną wysokość podnoszenia ładunku pobranego od strony A:

218 / 276

218. W oparciu o przedstawiony diagramu dźwigu i rysunek określ maksymalną bezpieczną wysokość podnoszenia ładunku pobranego od strony B:

219 / 276

219. W oparciu o przedstawiony diagramu dźwigu i rysunek określ maksymalną bezpieczną wysokość podnoszenia ładunku pobranego od strony A:

220 / 276

220. W oparciu o przedstawiony diagram udźwigu i rysunek określ maksymalną bezpieczną wysokość podnoszenia ładunku pobranego od strony B:

221 / 276

221. W oparciu o przedstawiony diagramu dźwigu i rysunek określ maksymalną bezpieczną wysokość podnoszenia ładunku pobranego od strony A:

222 / 276

222. W oparciu o przedstawiony diagram udźwigu i rysunek określ maksymalną bezpieczną wysokość podnoszenia ładunku pobranego od strony B:

223 / 276

223. W oparciu o przedstawiony diagram udźwigu i rysunek określ maksymalną bezpieczną wysokość podnoszenia ładunku pobranego od strony A:

224 / 276

224. W oparciu o przedstawiony diagram udźwigu i rysunek określ maksymalną bezpieczną wysokość podnoszenia ładunku pobranego od strony B:

225 / 276

225. W oparciu o przedstawiony diagram udźwigu określ maksymalny udźwig wózka na wysokości 6 m:

226 / 276

226. W oparciu o przedstawiony diagram udźwigu określ maksymalny udźwig wózka na wysokości 6,7 m:

227 / 276

227. W oparciu o przedstawiony diagram udźwigu określ maksymalną masę ładunku, o wymiarach podstawy 1,6 m x 1,6m:

228 / 276

228. W oparciu o przedstawiony diagram udźwigu określ maksymalną masę ładunku, o wymiarach podstawy 2 m x 2m:

229 / 276

229. W oparciu o przedstawiony diagram udźwigu oraz rysunek określ maksymalną bezpieczną wysokość podnoszenia ładunku pobranego z kierunku A:

230 / 276

230. W oparciu o przedstawiony diagram udźwigu oraz rysunek określ maksymalną masę ładunku pobranego od strony B:

231 / 276

231. W oparciu o przedstawiony diagram udźwigu oraz rysunek określ maksymalną masę ładunku pobranego od strony A:

232 / 276

232. W oparciu o przedstawiony diagram udźwigu oraz rysunek określ maksymalną masę ładunku pobranego od strony B:

233 / 276

233. W oparciu o przedstawiony diagram udźwigu oraz rysunek określ maksymalną masę ładunku, jaką można bezpiecznie podnieść pobierając ładunek od strony A:

234 / 276

234. W oparciu o przedstawiony diagram udźwigu oraz rysunek określ maksymalną masę ładunku, jaką można bezpiecznie podnieść pobierając ładunek od strony A:

235 / 276

235. W oparciu o przedstawiony diagram udźwigu oraz rysunek określ maksymalną masę ładunku, jaką można bezpiecznie podnieść pobierając ładunek od strony B:

236 / 276

236. W oparciu o przedstawiony diagram udźwigu oraz rysunek określ maksymalną bezpieczną wysokość podnoszenia, ładunku pobranego z kierunku A:

237 / 276

237. W oparciu o przedstawiony diagram udźwigu określ maksymalny udźwig wózka, podnoszącego ładunek na wysokość 3000 mm:

238 / 276

238. W oparciu o przedstawiony diagram udźwigu określ maksymalny udźwig wózka, podnoszącego ładunek na wysokość 4000 mm:

239 / 276

239. W oparciu o przedstawiony diagram udźwigu określ maksymalny udźwig wózka, podnoszącego ładunek na wysokość 5000 mm:

240 / 276

240. W oparciu o przedstawiony diagram udźwigu oraz rysunek określ maksymalną masę ładunku jaką można bezpiecznie podnieść na wysokość 4000 mm, pobierając od strony B:

241 / 276

241. W oparciu o przedstawiony diagram udźwigu oraz rysunek określ maksymalną masę ładunku jaką można bezpiecznie podnieść na wysokość 4000 mm, pobierając od strony A:

242 / 276

242. W oparciu o przedstawiony diagram udźwigu oraz rysunek wskaż, na który regał lub regały można postawić ładunek:

243 / 276

243. W oparciu o przedstawiony diagram udźwigu oraz rysunek wskaż, na który regał lub regały można postawić ładunek:

244 / 276

244. W oparciu o przedstawiony diagram udźwigu oraz rysunek wskaż, na który regał lub regały można postawić ładunek:

245 / 276

245. W oparciu o przedstawiony diagram udźwigu oraz rysunek określ maksymalną masę ładunku, pobranego od strony B:

246 / 276

246. W oparciu o przedstawiony diagram udźwigu oraz rysunek określ maksymalną masę ładunku, pobranego od strony A:

247 / 276

247. W oparciu o przedstawiony diagram udźwigu oraz rysunek określ maksymalną bezpieczną wysokość podnoszenia, ładunku pobranego z kierunku A:

248 / 276

248. W oparciu o przedstawiony diagram udźwigu oraz rysunek określ maksymalną bezpieczną wysokość podnoszenia, ładunku pobranego z kierunku B:

249 / 276

249. W oparciu o przedstawiony diagram udźwigu oraz rysunek określ maksymalną bezpieczną wysokość podnoszenia, ładunku pobranego z kierunku A:

250 / 276

250. W oparciu o przedstawiony diagram udźwigu oraz rysunek określ maksymalną bezpieczną wysokość podnoszenia, ładunku pobranego z kierunku B:

251 / 276

251. W oparciu o przedstawiony diagram udźwigu oraz rysunek określ maksymalną masę ładunku, pobranego od strony A:

252 / 276

252. W oparciu o przedstawiony diagram udźwigu oraz rysunek określ maksymalną masę ładunku, pobranego od strony B:

253 / 276

253. W oparciu o przedstawiony diagram udźwigu oraz rysunek określ maksymalną masę ładunku, pobranego od strony A:

254 / 276

254. W oparciu o przedstawiony diagram udźwigu oraz rysunek określ maksymalną masę ładunku, pobranego od strony B:

255 / 276

255. Na podstawie diagramu określ na jaką maksymalną wysokość można podnieść ładunek o masie 4,0 t:

256 / 276

256. Na podstawie diagramu określ na jaką maksymalną wysokość można podnieść ładunek o masie 3,0 t:

257 / 276

257. Na podstawie diagramu określ na jaką maksymalną wysokość można podnieść ładunek o masie 3t:

258 / 276

258. Na podstawie diagramu określ maksymalny wysięg dla ładunku 1,6 t:

259 / 276

259. Na podstawie diagramu określ maksymalny wysięg dla ładunku 4,0 t:

260 / 276

260. Na podstawie diagramu określ jaki ładunek można podać na odległość 5 m:

261 / 276

261. Na podstawie diagramu, parametry wózka to:

262 / 276

262. Na podstawie diagramu określ na jaką maksymalną wysokość można podnieść ładunek o masie 3,0 t:

263 / 276

263. Na podstawie diagramu określ maksymalny wysięg dla ładunku 4,0 t:

264 / 276

264. Na podstawie diagramu określ na jaką maksymalną wysokość można podnieść ładunek o masie 1,5 t:

265 / 276

265. Na podstawie diagramu określ maksymalny wysięg dla ładunku 1,5 t:

266 / 276

266. Zgodnie z podanym diagramem udźwigu w sytuacji jak na rysunku operator może:

267 / 276

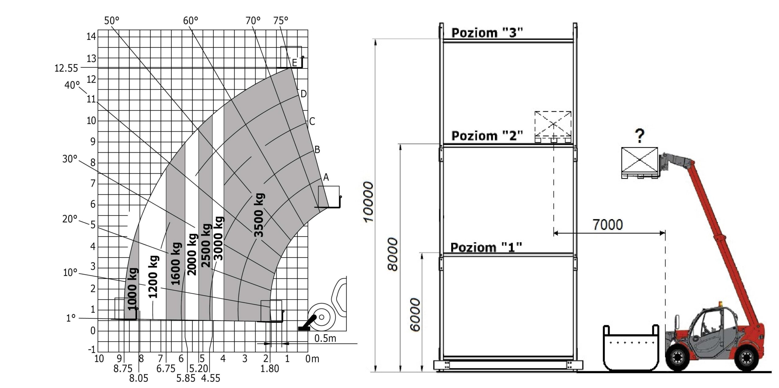
267. Ile może wynosić masa podnoszonego ładunku w przypadku, gdy zgodnie z podanym diagramem udźwigu w sytuacji jak na rysunku operator ma za zadanie odłożyć ładunek na poziomie „2” ?

268 / 276

268. Maksymalna wysokość podnoszenia ładunku o masie 3,5 t wynosi:

269 / 276

269. Maksymalna wysokość podnoszenia ładunku o masie 2,5 t wynosi:

270 / 276

270. Zgodnie z podanym diagramem maksymalny wysięg ładunku o masie 1,2 t wynosi:

271 / 276

271. Ile może wynosić masa podnoszonego ładunku w przypadku, gdy zgodnie z podanym diagramem udźwigu w sytuacji jak na rysunku operator ma za zadanie odłożyć ładunek na poziomie „2” ?

272 / 276

272. Na podstawie diagramu parametry wózka to:

273 / 276

273. Na podstawie diagramu określ maksymalny wysięg dla ładunku 2,0 t:

274 / 276

274. Na podstawie diagramu określ maksymalny wysięg dla ładunku 2,0 t:

275 / 276

275. Na podstawie diagramu określ maksymalny wysięg dla ładunku 2,5 t:

276 / 276

276. Świecąca się kontrolka ciśnienia oleju może świadczyć o:

Twój wynik to

0%

Wróć do kursu